顺义865套共有产权房完成二次申购摇号工作,12月5日选房
2020-11-29 11:17 来源:  北京号
关注

日前,记者从区住房和城乡建设委获悉,蓝境佳园共有产权住房项目经过第一轮选房后剩余房源865套,已于昨日完成二次申购摇号工作,将于12月5日至9日进行选房工作。

蓝境佳园共有产权

住房项目

项目四至为:东至马头庄路,南至双裕街,西至天北路,北至双裕北街。

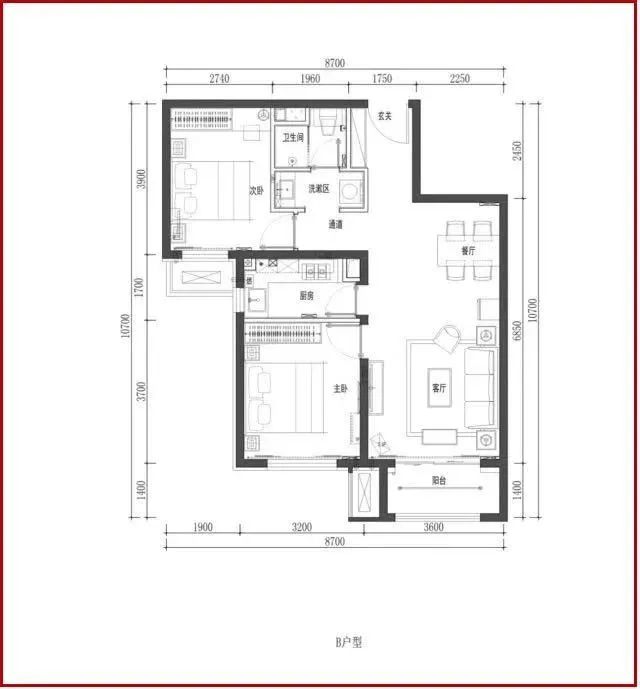
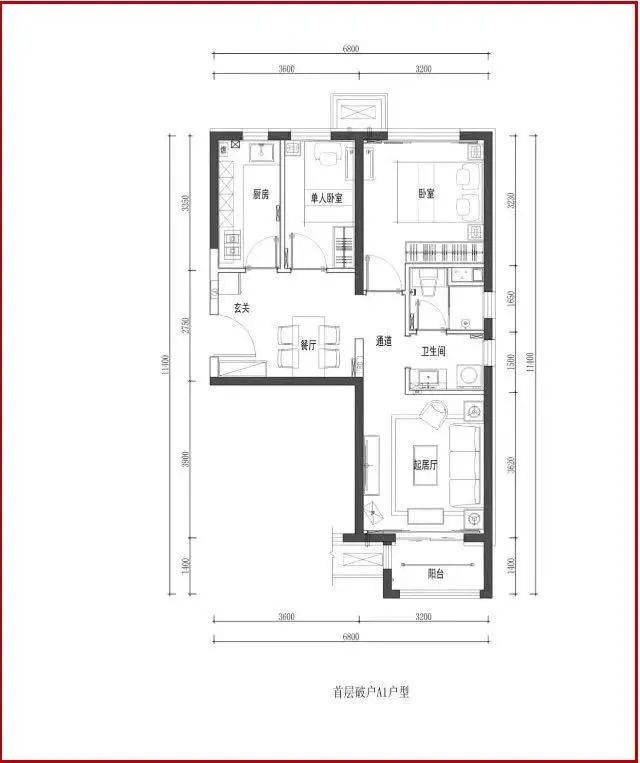
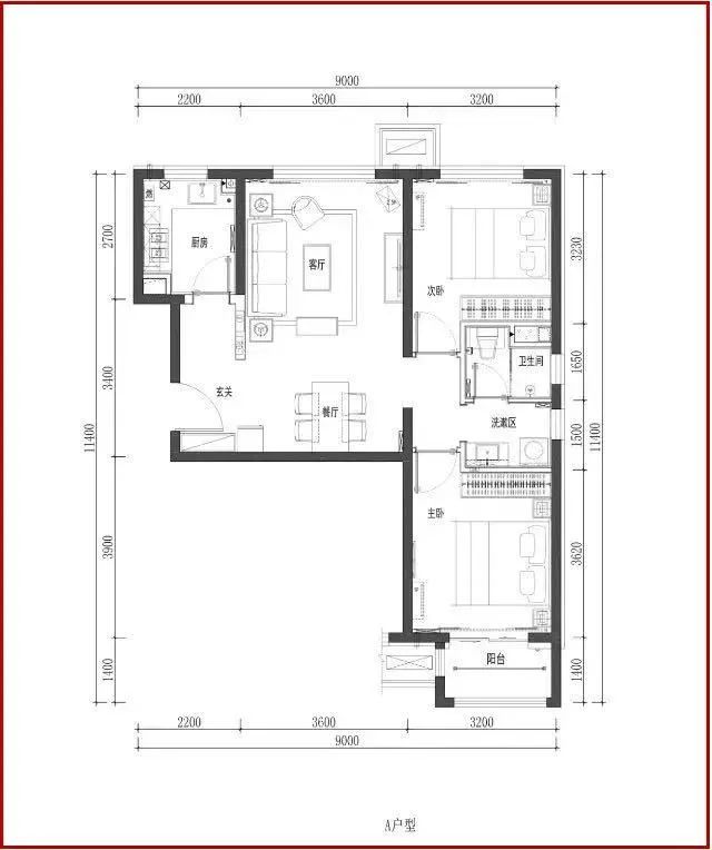
项目总套数1400套,本次配售房源为剩余房源865套,其中,两居室760套,建筑面积约73-87平方米;三居室105套,建筑面积约109平方米。

据介绍,该共有产权房项目已完成主体结构封顶,正在进行立面装饰跟室内装修工作,预计2021年9月竣工验收。项目建筑面积为20.55万平方米,销售均价27000元/平方米(根据具体楼层、朝向在±5%的范围内调整销售价格),全装修交房。

据悉,该项目最终申购报名申请家庭11202户,审核合格家庭9725户。其中,第一组1517户(面向顺义区户籍的无房家庭、在顺义区工作的本市其他区户籍无房家庭),第二组4922户(面向本市城六区户籍无房家庭、在城六区工作的本市其他区户籍无房家庭),第三组507户(面向在顺义区有稳定工作的非京籍无房家庭配售),第四组2779户(面向在本市城六区,有稳定工作的非京籍无房家庭配售)。

该项目设有5种户型

户型图公布如下


作者:

北京顺义官方发布

打开APP阅读全文
特别声明:本文为北京日报新媒体平台“北京号”作者上传并发布,仅代表作者观点,北京日报仅提供信息发布平台。未经许可,不得转载。
APP内打开