多维交通+优质资源+灵活空间,石景山这处超5A甲级写字楼打造商务新主场!
2025-06-10 10:22 来源:  北京号
关注

四轨交会的石景山金安桥站与首钢园一路之隔,在金安桥站之上,傲然屹立着三栋超5A甲级写字楼,成为商务人士瞩目的焦点。

这里就是中海时代广场

便利的交通,国际化的配置

智能的办公环境

完善的商业配套……

便利交通

高端配套打造精致商务空间

图片

在地理位置上,中海时代广场具有显著优势。周边配套设施齐全,交通极为便利。轨道交通方面,6号线、11号线、S1号线三轨交汇,地铁1号线接驳换乘,轻松便捷抵达北京各区域;三横(长安街西延线、阜石路、莲石路)和三纵(北辛安路、杨庄大街、西五环)的城市干道,交通路网完善;距离金安桥公交站步行仅200米,28条公交线路带来便捷体验。

图片

中海时代广场建筑面积约21万平米,与金安中海财富中心及中海寰宇天下三栋写字楼共同构筑60万㎡商务集群,搭建产业集群化发展平台。在建筑风格上,超白双银low-e玻璃幕墙充满了未来科技感,10.5米挑高和380余平米星级大堂,营造未来商务体验。

图片

这里配备了8部搭配智能呼叫系统的电梯,公共部分品质精装营造大气简约的办公环境,还设置了1300余个车位,其中充电车位达300余个,满足各类停车需求。

更值得一提的是,中海时代广场从规划、建材到建筑施工,全部采用生态环保材质及工艺,获国家绿建三星认证。如果工作累了,不妨来城市艺术展廊、疗愈花园、小气候峡谷、艺术连廊等四大主题景观空间走走吧,相信花园式的办公体验一定会赶走一天疲惫。

精巧设计将空间潜力发挥到极

图片

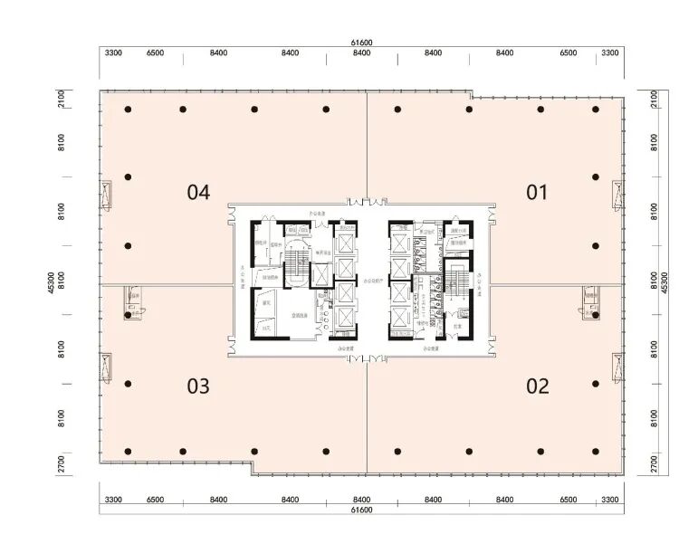
而当我们步入每层的办公空间,更是别有洞天。2800平方米的超大平层视野开阔,方正无柱空间也可让企业自由分割组合,突破空间局限性。标准层层高4.05米、净高达2.8米,造出开阔通透的空间感,大气磅礴,令人眼前一亮。也正是因为这样的设计,写字楼使用率可达74%以上。

图片
图片
图片

3-10层▼

• 建筑面积约2800平方米

• 单元面积范围约690—740平方米

• 采光通透、视野开阔

图片

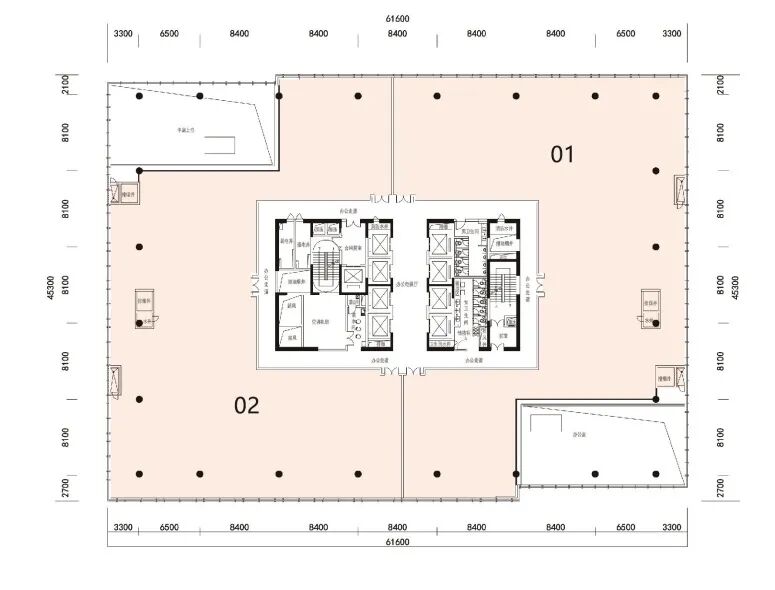
11层▼

• 建筑面积约2300平方米

• 单元面积范围约745—880平方米

图片

12-16层、18层▼

• 建筑面积约2800平方米

• 单元面积范围约690—740平方米

• 拥有13.2—15.6米的进深

图片

17、19层▼

• 建筑面积约2400平方米

• 单元面积范围约1200平方米

• 无柱办公设计,使用灵活

图片
图片

每栋写字楼近百米层高,同时一线紧邻首钢园,如果您走到落地窗前,石景山的现代繁华就将呈现在眼前——首钢滑雪大跳台、群明湖、石景山等城市、生态景观尽收眼底,倾注着现代都市的繁忙,摩登却充斥着烟火气息。

图片

这里还规划有1.2万平米商业配套,通过连廊与中海环宇荟连通,共同构成3.4万平米商业中心,并汇聚餐饮、休闲、购物等多元业态,营造上楼办公楼栋悦活的都市办公体验。

图片

作为一座集现代建筑理念

与技术创新于一体的办公地标

中海时代广场正成为

又一批优质企业青睐之地

在石景山

一座座高品质办公载体鳞次栉比

拥有令人瞩目的核心优势

直击企业办公痛点,为企业发展赋能

在这里

企业不仅能拥有舒适高效的办公环境

更能把握发展机遇

与众多优秀企业共同成长

开启区域产业发展新篇章


作者:

北京石景山官方发布

打开APP阅读全文
特别声明:本文为北京日报新媒体平台“北京号”作者上传并发布,仅代表作者观点,北京日报仅提供信息发布平台。未经许可,不得转载。
APP内打开